Nắm rõ những điều cần biết trước khi ký hợp đồng thi công nhà gỗ về chất lượng gỗ, chi phí, tiến độ và quyền lợi pháp lý sẽ tránh được những rủi ro cũng như đảm bảo công trình hoàn thiện theo đúng kế hoạch. Cùng chúng tôi tìm hiểu cụ thể về các lưu ý quan trọng trước khi ký hợp đồng làm nhà gỗ trong bài viết sau đây.
Bộ gian thờ được bố trí đầy đủ trong nhà gỗ
>> Xem thêm: Kinh nghiệm chọn sập thờ mai điểu chuẩn cho nhà gỗ cổ truyền
Những lưu ý khi ký hợp đồng thi công nhà gỗ

Hợp đồng thi công nhà gỗ là văn bản về pháp lý giữa chủ đầu tư và đơn vị thi công. Trong đó có các quy định rõ ràng về quyền lợi, nghĩa vụ cũng như trách nhiệm và các điều kiện khi thi công nhà gỗ. Nói tóm lại, hợp đồng làm nhà gỗ là khung pháp lý đảm bảo gia chủ không bị thiệt hại về các quyền lợi trong quá trình làm nhà.
Xác minh uy tín đơn vị thi công
Làm nhà gỗ đòi hỏi kỹ thuật đục chạm và sàm đóng khắt khe, chính vì vậy khi thi công gia chủ nên tới trực tiếp ưởng sản xuất để kiểm tra quy mô, máy móc và tay nghề thợ. Kiểm tra giấy phép kinh doanh và năng lực hoạt động của công ty.

Có thiết kế và bản vẽ chi tiết trước khi ký
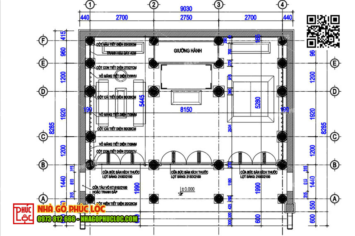
Trước khi ký hợp đồng thi công nhà gỗ quý vị cũng nên yêu cầu có thiết kế và bản vẽ, đây là căn cứ để nghiệm thu công trình. Ít cần cần có bản vẽ kiến trúc (phối cảnh 3D), bản vẽ kết cấu gỗ (chi tiết các cột, xà, kẻ, bẩy…) và bản vẽ điện nước. Điều chỉnh bản vẽ trước khi ký kết để tránh các khoản phí phát sinh.

Quy định về loại gỗ sử dụng
Đây là tiêu chí quan trọng hàng đầu ảnh hưởng tới tính thẩm mỹ và độ bền của công trình nhà gỗ. Trên bản hợp đồng cần có đầy đủ thông tin về: loại gỗ, xuất xứ, độ dày và khả năng chống mối mọt. Quý gia chủ nên kiểm tra gỗ trước khi nhập kho và trong quá trình thi công.
Phạm vi công việc trong hợp đồng
Phạm vi công việc trong hợp đồng thi công nhà gỗ cần liệt kê chi tiết từng hạng mục: chuẩn bị nền, lắp dựng khung, thi công mái và hoàn thiện, bảo hành. Cần bóc tách rõ ràng các hạng mục đơn vị thi công cần thực hiện gồm:
- Phần mộc (xẻ gỗ, đục chạm).
- Phần hoàn thiện (đánh nhám, phun sơn).
- Phần mái (lợp ngói, dán ngói).
- Phần xây dựng (xây tường bao, lát nền).
- Vận chuyển và lắp đặt tại công trình.

Giá trị hợp đồng và cách tính chi phí
Trong bản hợp đồng cần xác định rõ hình thức khoán: Khoán trọn gói hay khoán theo khối lượng gỗ thực tế (m3). Nếu tính theo khối lượng gỗ cần quy định rõ là tính theo gỗ tròn, gỗ hộp hay gỗ thành phẩm trên khung nhà để tránh chênh lệch. Ngoài ra cần thỏa thuận rõ mức giá cho các hạng mục phát sinh ngoài hợp đồng.
Tiến độ thi công và thời gian hoàn thành
Hợp đồng thi công nhà gỗ cũng cần ghi rõ ngày bắt đầu, ngày lắp dựng khung và ngày bàn giao hoàn thiện. Mức phạt chậm tiến độ của đơn vị thi công nếu có, đây là điều khoản bắt buộc để đơn vị thi công tập trung hoàn thiện theo đúng tiến độ.

Điều khoản thanh toán
Điều khoản thanh toán sẽ chia thành các đợt theo tiến độ khác nhau như: 30% khi ký hợp đồng, 40% khi dựng khung xong, 30% khi nghiệm thu. Giữ lại một phần thanh toán cuối cùng để đảm bảo nhà thầu hoàn thiện công trình. Tránh thanh toán sớm toàn bộ, đơn vị thi công sẽ thiếu trách nhiệm trong hoàn thiện và bảo hành.
Những sai lầm khi ký hợp đồng làm nhà gỗ
Dưới đây là những sai lầm cần tránh khi ký hợp đồng thi công nhà gỗ quý vị có thể tham khảo:
- Không ghi rõ loại gỗ và quy cách: Khi hợp đồng không nêu rõ gỗ sử dụng và quy cách (kích thước, chất lượng) sẽ dẫn đến tranh chấp khi nhà thầu dùng loại gỗ khác hoặc gỗ kém chất lượng.
- Ký hợp đồng khi chưa có thiết kế: Nếu chưa có bản vẽ chi tiết hợp đồng sẽ không xác định được phạm vi thi công, dễ phát sinh sai sót, thay đổi và chi phí ngoài dự kiến.
- Không quy định chi phí phát sinh: Nếu hợp đồng thiếu các quy định về chi phí phát sinh, sẽ khiến gia chủ phải thanh toán thêm các khoản phí không có căn cứ dễ gây tranh chấp hoặc lãng phí.
- Tin tưởng thỏa thuận miệng: Các thỏa thuận không được ghi vào hợp đồng thường không có giá trị pháp lý, dẫn đến khó bảo vệ quyền lợi nếu có mâu thuẫn xảy ra.

Trước khi ký hợp đồng thi công nhà gỗ quý vị nên nắm rõ loại gỗ, thiết kế, chi phí phát sinh và mọi thỏa thuận phải được ghi rõ trong hợp đồng để đảm bảo quyền lợi và tránh rủi ro không đáng có. Mọi thông tin cần hỗ trợ khi làm nhà gỗ truyền thống, hãy liên hệ Nhà Gỗ Phúc Lộc theo số hotline 0973 812 666 để được tư vấn cụ thể nhất.
Thông tin về nhà gỗ Phúc Lộc
Số điện thoại: 0973812666
Nhận tư vấn thiết kế: Th.s kiến trúc sư Nguyễn Huy Khiêm
Xưởng sản xuất: xã Hạ Bằng, Tp Hà Nội (dưới chân núi chùa Tây Phương)
>Tham khảo thêm video về nhà gỗ truyền thống Bắc Bộ
>Tham khảo thêm những dự án nhà gỗ đẹp


